บ้านทาวน์เฮ้าส์หน้าแคบ 12 ฟุต โปร่งโล่งมองเห็นความโปร่ง
หน้าแรก ห้องนั่งเล่น บ้านทาวน์เฮ้าส์หน้าแคบ 12 ฟุต โปร่งโล่งมองเห็นความโปร่ง
เข้าชม 5,418
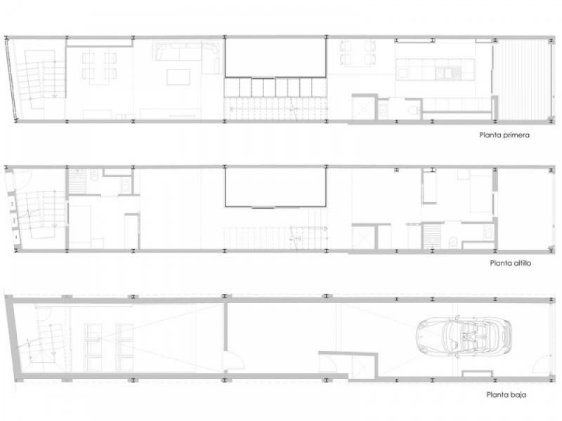
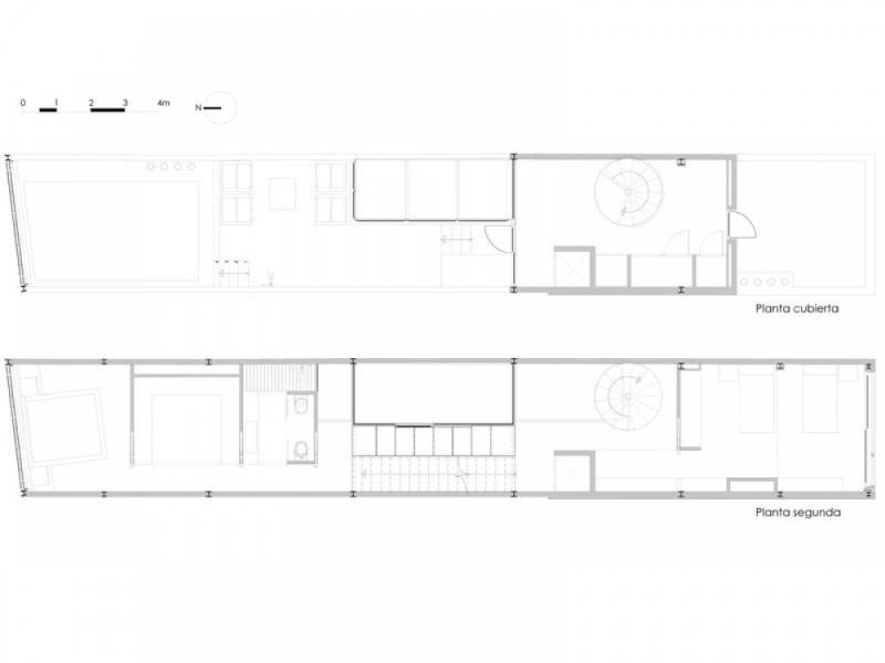
แบบบ้านทาวน์เฮ้าส์หน้าแคบที่แอบเท่ท่ามกลางอาคารเพื่อนบ้านที่มีโครงสร้างของอาคารเก่าด้วยเหล็กดัดฟอร์มย้อนยุค ซึ่งบ้านทาวน์เฮ้าส์ที่เรากำลังกล่าวถึงนี้อยู่ย่านใจกลางเมืองเก่าในบาร์เซโลน่า โดยพื้นที่ที่ดูเล็กแคบและลึก ขนาดกว้าง 3.7 เมตร x ยาว 25 เมตร ซึ่งตัวอาคารนี้อยู่ติดริมถนนทั้งด้านหน้าและด้านหลังบ้าน การปรับปรุงบ้านในครั้งนี้เน้นพื้นที่การใช้งานแบบแนวตั้งโดยยังรักษาโครงสร้างเดิมไว้ และให้ความสำคัญกับการออกแบบให้รับแสงสว่างจากธรรมชาติได้อย่างเต็มที่
ขอขอบคุณ: www.homedsgn.com



















