สุดยอดห้องน้ำ หรูหรา

หน้าแรก ห้องน้ำ สุดยอดห้องน้ำ หรูหรา

เข้าชม 3,965

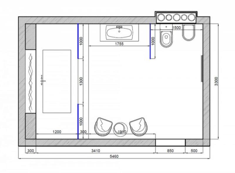
These could be eight of the most luxurious bathrooms we have ever had the pleasure of virtually visiting; steeped in beauty and the most expensive of flourishes, these are eight amazing spaces.
ขอขอบคุณ: www.home-designing.com