เข้าชม 5,304
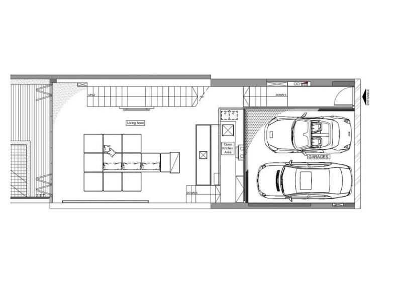
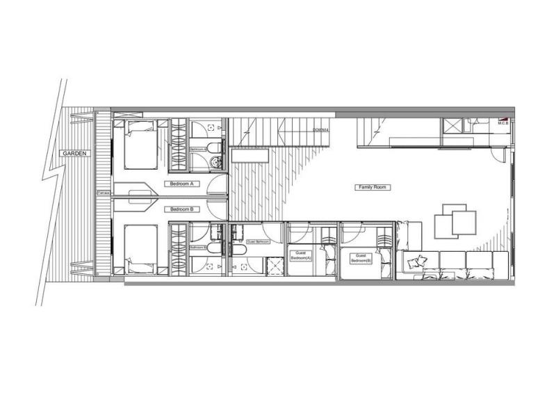
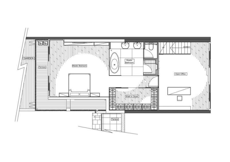
ดังนั้นคิดว่าการออกแบบบ้านทั้งทีมันก็ต้องใช้ทุกตารางนิ้วให้คุ้มค่ากันสุดๆ ทางทีมสถาปนิกได้แก้ไขปัญหาของที่ดินแคบและยาว ด้วยการสร้างแบบบ้านสไตล์โมเดิร์นที่มีพื้นที่ใช้สอยทางแนวตั้ง และพื้นที่นอกบ้านออกแบบสระน้ำแนวยาวที่ใช้พื้นที่ประมาณ 40% ส่วนที่เหลือปูพื้นด้วยวัสดุไม้สีเข้มสำหรับงานกลางแจ้งแบบเรียบๆ
ขอขอบคุณ: www.archdaily.com

















