อพาร์ทเม้นแบบ โมเดิร์น ศิลปะและสถาปัตยกรรม
หน้าแรก ตกแต่งภายใน อพาร์ทเม้นแบบ โมเดิร์น ศิลปะและสถาปัตยกรรม
				เข้าชม 2,331
				 			
			
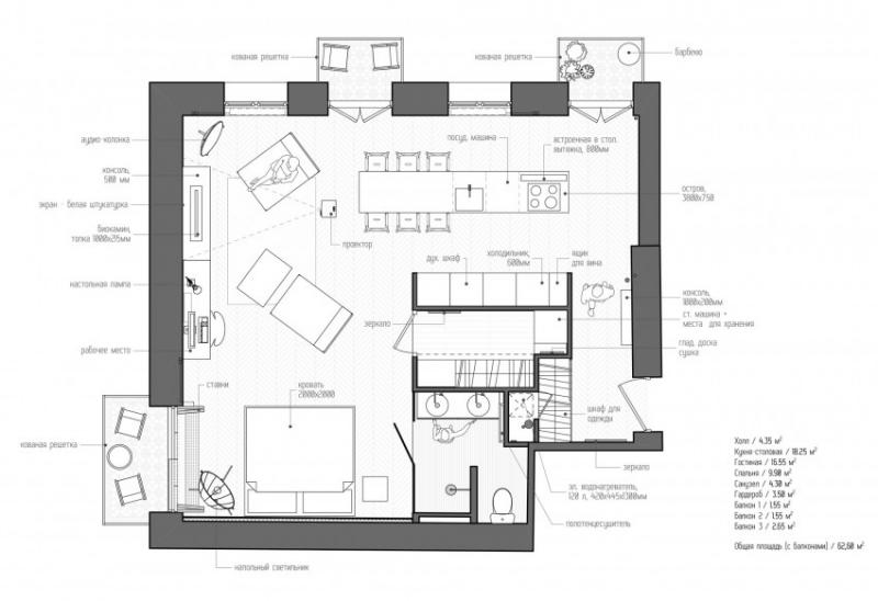
We stumbled across this modern apartment visualized by Russian studio INT2 Architecture and were pleasantly surprised by its originality. Simple elegance is displayed throughout the interiors of this home, exuded by an interesting array of materials and enhanced by color contrasts. The stage was set for contemporary artistic additions, which add a slightly pedantic effect. White walls contribute to an overall fresh and clean look, while large windows allow an abundance of natural light inside all the rooms of the loft
Each design element has its unique and powerful personality and how the studio planned this harmonious mix is inspiring. A vintage feel is subtly released in the living area, due to the leather armchairs and ottoman. This is contrasted by the modernist fireplace, neighboring desk and minimalist lighting additions above. We love how the designers maintained the same style and color palette in the bedroom, with parquet flooring delivering a warm atmosphere. Enjoy the photos and let us know what other details you consider worth emphasizing on!
ขอขอบคุณ: freshome.com




















